The Ramey House

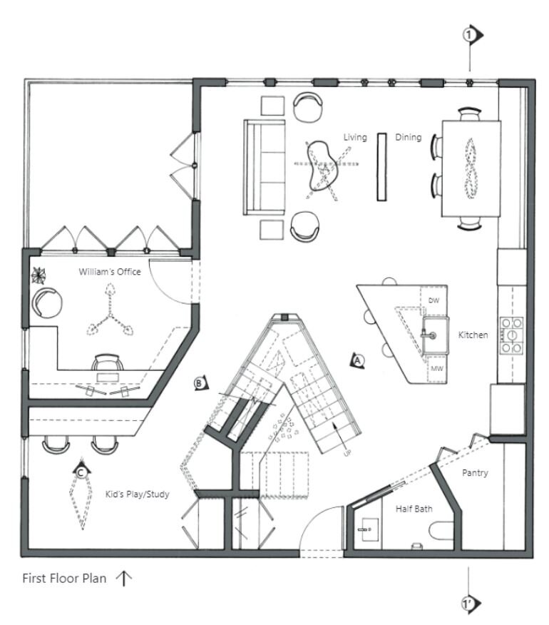
A family of four picked up their lives and moved not only to a new city for the parents’ professional careers but to a new two-level condominium. The two children, one boy, and one girl, are both below the age of 10. The boy, in particular, has autism spectrum disorder (ASD). With a variety of individual needs at play, it was important to create a safe, comfortable, and supportive environment to positively impact all users. With that in mind, it was absolutely necessary to consider the fact that disorders are not only distressing and impairing to those that experience it directly each day, but those that surround them too. Design is all about manipulating one’s environment and controlling stimuli to shape the way people live, and I sought to do just that. The floor plan is organized to where auditory awareness is maximized throughout. Since the young child with ASD commonly resorts to making noises, this would allow the parents and sibling the ability to keep tabs on him at all times, even if he’s not directly visible. This was achieved through a unique and open staircase as well as a generally open living zone with direct adjacencies. To ensure each member of the family is supported, each is provided their own space of respite to escape to - whether that be an office area or a nook under the stairs. Overall, the design meets the functional and behavioral needs of the end-users to empower them in their daily lives.
— MiKayla Adkins